Ingatlan adatlap
|
|||||
| Kód: 1269. | Nyomtatás | ||||
|
|||||
|
|||||
|
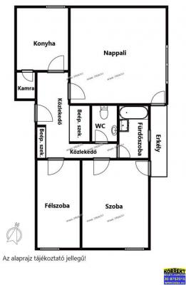
A közelben élelmiszerüzletek, étterem, vasútállomás és buszmegálló található. Helyiségek: Nappali, szoba, félszoba, konyha, kamra, fürdőszoba, WC, erkély, és 17,6 nm-es garázs. A lakásban kábel tv, internet bekötésre is lehetőség van. 2 beépített szekrény található a közlekedőn. Fűtés: gázkonvektorokkal, meleg víz ellátás átfolyós gázbojlerrel történik. ALACSONY REZSIKÖLTSÉG! Akár állandó lakásnak vagy nyaralónak, de befektetésnek is alkalmas ingatlan. Kulcsunk van hozzá, így előzetes időpont egyeztetéssel bármikor megtekinthető a lakás. KÉRJÜK, HOGY LEHETŐLEG TELEFONON KERESSENEK, AKÁR HÉTVÉGÉN IS. Teljes körű ügyintézés, kedvezményes ügyvédi költség, energetikai tanúsítvány ügyintézése, díjmentesen segítünk a közművek átírásában. Eladáskor előre kitöltjük a közmű nyomtatványokat, ha a szerződő felektől hozzájárulást-meghatalmazást kapunk rá! Ingatlana eladásakor sem hagyjuk magára Önt. A kulcsátadásig, birtokbaadásig is végig visszük a teljes értékesítési folyamatot! Korrekt Ingatlanközvetítő Iroda, Balatonlelle, Rákóczi Ferenc út 164., (Az iroda 7-es főút mellett a körforgalomtól (SPAR-tól, Márton cukrászdától) 300 m-re SIÓFOK irányába, a nagy SÁRGA táblánál található). |
|||||
Képek A képek kattintással nagyíthatóak! |
|||||
KORREKT INGATLANIRODA 8638 Balatonlelle, Rákóczi Ferenc út 164., Tel: +36 30-9752015 Megközelíthető: A SPAR-tól, Márton cukrászdától, körforgalomtól 300 m-re, SIÓFOK irányába. Nyitva tartás: H-P: 9-17; Szo: 9-12 Ügyfélfogadás hétvégén is telefonon előre egyeztetett időpontban. |
|||||
![]() |
|||||






























